The original Henry, TN manufacturing facility opened in October of 1968. In 2008, the plant was relocated to the current larger location in Dresden, TN.
The Dresden, TN plant has a combined 1,375 years experience, with an average length of employment being 9 years. This means that Atlantic Homes' quality and workmanship is far superior to other plants in the manufactured home industry.
Every manufactured and modular home Atlantic builds is professionally designed and engineered. Built by craftsmen in a controlled factory environment, Atlantic Homes are continually inspected at every phase of the home construction process to ensure rigorous quality standards are met. From active young families on the go, to retirees ready to relax and enjoy, Atlantic's vast selection of floor plans, home decors and options give you the design choices you want to create your dream home!
Check Out These Featured Homes:
Innovation HE 3264
House Type: Multi-Section
3 bedrooms/ 2 bathrooms
1,820 sq. ft.
Size: 32' X 60'
Model #: 21-3264
For a custom quote, please call River Bend Park at 870.365.6004.
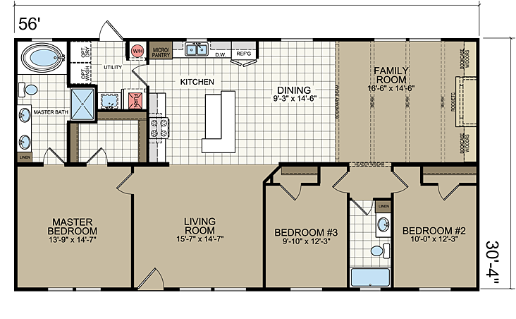
Ridgecrest LE 3201

House Type: Multi-Section
3 bedrooms/ 2 bathrooms
1,699 sq. ft.
Size: 32' X 56'
Model #: 21-3201
For a custom quote, please call River Bend Park at 870.365.6004.